结构
改良多级AO-NMBR组合装置,主体设备成环状,将缺氧、好氧区与沉淀区集成为一体。
外圈为缺氧区,内圆为好氧沉淀一体区。

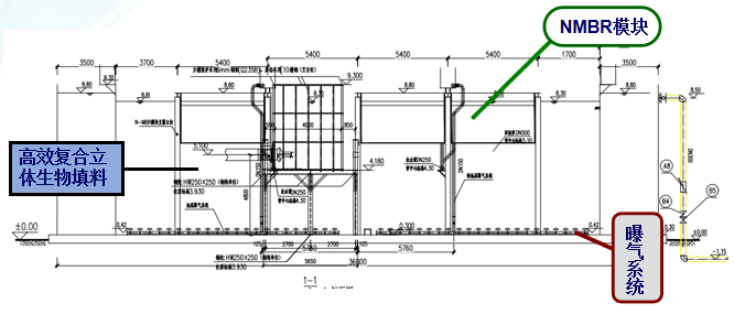
◆ 好氧沉淀一体区上部安装有NMBR模块。
◆ 好氧沉淀一体区中部安装有高效复合立体生物填料。
◆ 好氧沉淀一体区下部安装有曝气系统。

特点
◆ 好氧池内设置NMBR模块,泥水分离区与好氧区叠加,无需设置二沉池,极大减少占地面积;
◆ NMBR模块实现水和污泥的有效分离,污泥重力回流至好氧区,可实现污泥完全回流,同时防止传统沉淀池池底污泥厌氧造成的翻泥现象。
◆ 高效生物填料,强化提高活性污泥浓度。
◆ 可非常有效的通过生物强化处理去除水体中的各类污染物,使出水达到设计排放标准。
◆ 污泥无动力回流,无需设置污泥回流泵,节能效果明显,运行费用低;
◆ 污泥浓度高,抗冲击负荷能力强、运行稳定、管理方便。
◆ 施工快、模块化预制安装;
◆ 模块为全不锈钢材质,无易损部件,全寿命免维护。